Maison à vendre 5 pièces - 133 m² à Mornac
--- 172 500 € *

Maison à vendre 5 pièces de 133 m² à Mornac

À la croisée des centres-bourgs de MORNAC, PRANZAC et CHAZELLES, découvrez une maison individuelle de 132,50 m² offrant un cadre de vie calme et verdoyant, à la campagne tout en restant à proximité des commodités et des axes rapides permettant de rejoindre facilement ANGOULÊME et LA ROCHEFOUCAULD.

Construite au début des années 1980, la maison propose une distribution fonctionnelle et équilibrée, idéale pour une résidence principale familiale, avec la possibilité d’une vie de plain-pied.

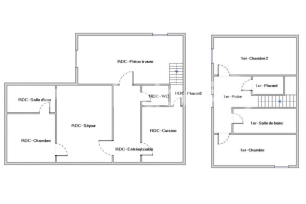
Au-rez-de-chaussée,
Vous trouverez une entrée avec couloir desservant cuisine indépendante, un séjour, un salon - salle à manger, une chambre, une salle d'eau, un WC indépendant ;

A l'étage,
Un palier desservant deux chambres, une salle de bains avec WC ainsi qu'un espace de rangement.

Les atouts de la maison :
* Portail électrique automatique,
* Garage fermé,
* Dépendances offrant des espaces de stockage complémentaires,
* Menuiseries en PVC double vitrage sur tous les ouvrants.
* Chauffage électrique complété par des panneaux solaires et des splits muraux au rez-de-chaussée,

Les points d'attention :
* Installation électrique partiellement modernisée, avec des points de sécurité à améliorer, cohérents à l'âge du bâti,
* Assainissement individuel à revoir, devis de remise aux normes déjà établi.

Performances énergétiques :
Consommation énergie primaire : 154 kWh/m2/an (classe C)
Consommation énergie finale : 92 kWh/m2/an
Émission de gaz à effet de serre : 5 kgCO2/m2/an (classe A)
Coûts annuels d'énergies du logement estimés entre 1710 et 2380 euros par an, prix moyen des énergies indexés sur les années 2021, 2022 et 2023, abonnements compris.

💡 Ce bien conviendra parfaitement à un foyer en recherche d’une maison principale offrant de beaux volumes, une organisation pratique au quotidien et un environnement paisible, avec des travaux d’amélioration ciblés à prévoir pour sécuriser et personnaliser l’habitat.

Pour plus d’informations ou organiser une visite, contactez Hans KOLB.

Cette annonce immobilière a été rédigée par l'agent commercial WEELODGE Hans Kolb - immatriculé au RSAC sous le n° 908315880 et titulaire de la carte de démarchage immobilier pour le compte de la société WEELODGE CENTER.

Honoraires : 7 500 € (4,55 %) TTC à la charge de l'acquéreur inclus. (165 000 € hors honoraires).

Consommation énergétique

Consommation énergétique

Émissions de gaz à effet de serre

Consommation énergétique

Fiche technique

  • Référence VM28171
  • Surface habitable 133 m²
  • Surface terrain 661 m²
  • Nombre de pièces 5
  • Nombre de chambres 3
  • Nombre de salles de bains 1
  • Garage 1
  • Etage 2
  • Copropriété Non
  • Estimation des coûts (€/an min.) 1710
  • Estimation des coûts (€/an max.) 2380

Ce bien vous est présenté par Hans Kolb

WEELODGE - Réseau national de mandataires immobiliers

Une info, une visite ?
Contactez-moi :

WhatsApp
Appel
eCard
Budget en €
Surface en m²
Téléphone

Autres biens correspondant à votre recherche

En cas de litige avec un professionnel du Réseau Weelodge relatif à l'exécution d'un contrat de vente ou de prestation de services, le consommateur est informé qu'il peut recourir à un médiateur, dont les coordonnées sont disponibles dans la section "mentions légales" de la page internet de l'agence ou de l'agent avec qui il est contractuellement lié. Les prospects et clients peuvent s’inscrire gratuitement sur la liste d’opposition au démarchage téléphonique, prévu par l’article L223-1 du code de la consommation, sur le site internet www.bloctel.gouv.fr. En validant un formulaire de contact, vous acceptez que les informations saisies dans ce formulaire soient utilisées, exploitées, traitées pour permettre de me recontacter dans le cadre de la relation commerciale qui découle de cette demande d’information. Plus d'informations sur nos pages Mentions légales et Politique de confidentialité.